トップページ > 新潟市西区小針西2丁目 

販売物件情報

  • お気に入りリストを見る
  • 物件情報を印刷する
  • プリンタの設定で「背景を印刷する」と設定しないと「背景画像」が印刷されないことがあります。印刷の際には、必ず「背景を印刷する」設定にしてください。

新築一戸建て 注目!

新潟市西区小針西2丁目 

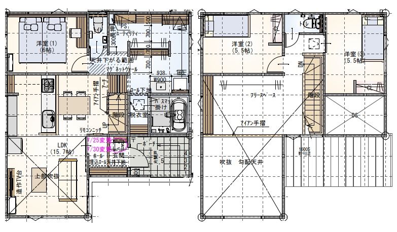
画像

この物件のお支払い例

頭金0円/ボーナス払い0円

物件価格3,597万円

月々の支払い82,371

※上記支払例の借入条件:金利0.48%、借入総額3,597万円、借入期間40年

セールスポイント

オフィスHanakoモデルハウス☆販売開始☆
お気軽にお問い合わせください♪


所在地・交通

所在地 新潟市西区小針西2丁目 
最寄駅 越後線 小針駅 徒歩分数 11分
最寄バス停 西小針 徒歩分数 3分
小学校校区 新潟市立真砂小学校 中学校校区 新潟市立五十嵐中学校

※学校区は住所から自動判定したものであり、保証できる情報ではございません。正確な学校区はお問い合わせ下さい。

お問い合わせフォームはこちら

「人型アイコン」を地図上にドラッグすることで『Google Street View』に切り替わります。

※地図上の「対象地」は「新潟県新潟市西区小針西2丁目」の場所を指しています。実際の場所ではない場合がございます。詳しくはお問い合わせください。

お問い合わせフォームはこちら

物件概要

価格 3,597万円(↓10.0%値下がり 種目 新築一戸建住宅
間取り 3LDK 間取り内訳
土地面積 127.03㎡ 私道面積
建物面積 101.01㎡ 建物構造規模 木造 2階建
築年月(竣工月) 2024年12月 駐車場 有 
建ぺい率/容積率 60%/200% 都市計画 市街化区域
接道状況 北東5.4m 公道  南東16.0m 公道   
地目 宅地
土地権利 所有権 地勢
用途地域 第二種住居地域
現況 空家 取引態様 代理
建築確認番号 NK第24本00766号

取引条件等

引渡し 相談

その他

設備 トイレ2ヶ所、追焚機能、システムキッチン、洗髪洗面化粧台、照明器具、電気、上水道、下水道、駐車場2台分
特徴 オール電化、太陽光
諸条件・相談
情報登録日 2024年11月19日 情報更新予定日 2025年10月24日
物件番号 21089
最近見た物件

お問合せ
資料請求

ページの先頭へ

Copyright (C) Hanako fudosan, All Rights Reserved.