トップページ > 新潟市西区寺尾上5丁目 

販売物件情報

  • お気に入りリストを見る
  • 物件情報を印刷する
  • プリンタの設定で「背景を印刷する」と設定しないと「背景画像」が印刷されないことがあります。印刷の際には、必ず「背景を印刷する」設定にしてください。

中古一戸建て 注目! リノベ済

新潟市西区寺尾上5丁目 

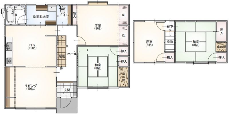
画像

この物件のお支払い例

頭金0円/ボーナス払い0円

物件価格1,890万円

月々の支払い43,281

※上記支払例の借入条件:金利0.48%、借入総額1,890万円、借入期間40年

セールスポイント

女性建築士が手掛けたリフォーム物件☆
\現在リフォーム中!令和8年1月完成予定/
リフォーム中もお気軽にお問い合わせください♪


所在地・交通

所在地 新潟市西区寺尾上5丁目 
最寄駅 越後線 寺尾駅 徒歩分数 13分
最寄バス停 下道上が丘 徒歩分数 4分
小学校校区 新潟市立新通小学校 中学校校区 新潟市立坂井輪中学校

※学校区は住所から自動判定したものであり、保証できる情報ではございません。正確な学校区はお問い合わせ下さい。

お問い合わせフォームはこちら

「人型アイコン」を地図上にドラッグすることで『Google Street View』に切り替わります。

※地図上の「対象地」は「新潟県新潟市西区寺尾上5丁目」の場所を指しています。実際の場所ではない場合がございます。詳しくはお問い合わせください。

お問い合わせフォームはこちら

物件概要

価格 1,890万円 種目 中古一戸建住宅
間取り 4LDK 間取り内訳
土地面積 204.66㎡ 私道面積
建物面積 119.24㎡ 建物構造規模 木造 2階建
築年月(竣工月) 1983年12月 駐車場 有 
建ぺい率/容積率 60%/200% 都市計画 市街化区域
接道状況 南西4.0m 私道    
地目 宅地
土地権利 所有権 地勢
用途地域 第一種住居地域
現況 空家 取引態様 売主
建築確認番号

取引条件等

引渡し 相談

その他

設備 温水洗浄便座、システムキッチン、電気、都市ガス、上水道、下水道、駐車場3台分
特徴 設備交換済み
諸条件・相談
情報登録日 2025年10月27日 情報更新予定日 2025年11月11日
物件番号 23056
最近見た物件

お問合せ
資料請求

ページの先頭へ

Copyright (C) Hanako fudosan, All Rights Reserved.