トップページ > 新潟市中央区女池6丁目 

販売物件情報

  • お気に入りリストを見る
  • 物件情報を印刷する
  • プリンタの設定で「背景を印刷する」と設定しないと「背景画像」が印刷されないことがあります。印刷の際には、必ず「背景を印刷する」設定にしてください。

新築一戸建て 注目!

新潟市中央区女池6丁目 

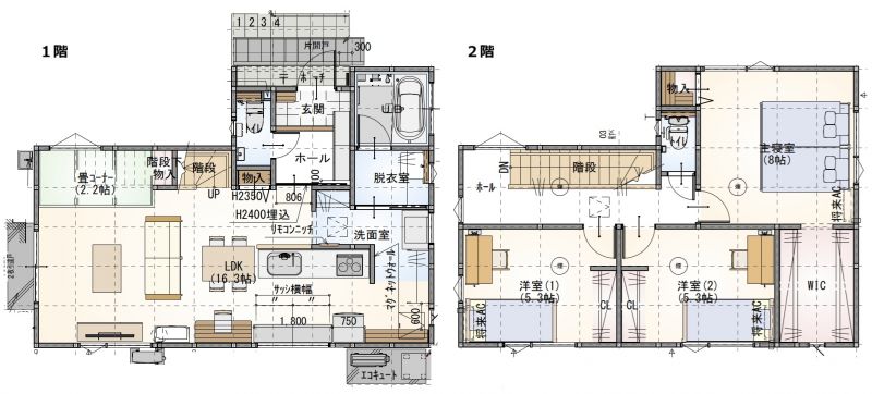
画像

この物件のお支払い例

頭金0円/ボーナス払い0円

物件価格3,850万円

月々の支払い88,165

※上記支払例の借入条件:金利0.48%、借入総額3,850万円、借入期間40年

セールスポイント

◆令和8年4月完成予定◆
女池小まで徒歩約3分☆3LDK・駐車3台可◎
☆女性建築士が手掛けたハナコの家☆
人気の女池エリアで新築戸建2棟限定販売開始!!
女性目線で考えた、ハナコならではの回遊同線の間取り◎
現在建築中ですが、是非お気軽にお問い合わせください♪


所在地・交通

所在地 新潟市中央区女池6丁目 
最寄駅 徒歩分数
最寄バス停 女池西 徒歩分数 6分
小学校校区 新潟市立女池小学校 中学校校区 新潟市立鳥屋野中学校

※学校区は住所から自動判定したものであり、保証できる情報ではございません。正確な学校区はお問い合わせ下さい。

お問い合わせフォームはこちら

「人型アイコン」を地図上にドラッグすることで『Google Street View』に切り替わります。

※地図上の「対象地」は「新潟県新潟市中央区女池6丁目」の場所を指しています。実際の場所ではない場合がございます。詳しくはお問い合わせください。

お問い合わせフォームはこちら

物件概要

価格 3,850万円 種目 新築一戸建住宅
間取り 3LDK 間取り内訳
土地面積 139.76㎡ 私道面積 23㎡
建物面積 98.12㎡ 建物構造規模 木造 2階建
築年月(竣工月) 2026年04月 駐車場 有 
建ぺい率/容積率 60%/200% 都市計画 市街化区域
接道状況 北西4.0m 私道 位置指定有   
地目 宅地
土地権利 所有権 地勢
用途地域 第一種住居地域
現況 未完成 取引態様 売主
建築確認番号 NK第25本01523号・NK第25本01524号

取引条件等

引渡し 期日指定 2026年4月下旬

その他

設備 温水洗浄便座、トイレ2ヶ所、追焚機能、システムキッチン、ウォークインクローゼット、洗髪洗面化粧台、照明器具、電気、上水道、下水道、エアコン、駐車場3台分
特徴 オール電化、◆制振ダンパー有り
諸条件・相談 ※上記物件概要はA棟の内容となります。B棟についてはお気軽にお問い合わせください♪
情報登録日 2025年11月22日 情報更新予定日 2026年3月17日
物件番号 23205
最近見た物件

お問合せ
資料請求

ページの先頭へ

Copyright (C) Hanako fudosan, All Rights Reserved.